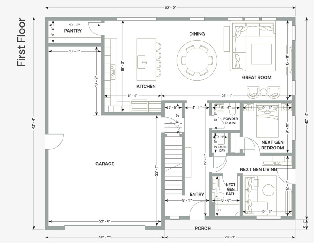
The Model X
Veev difference
Model X


Benefits
Benefitsevery detail thoughtfully designed for comfort, sustainability, and style.
An overview of the distinctive benefits of the Veev Model X
Comfort & Controls
Lighting that feels good: Clean, recessed LED lighting—dimmable, low-voltage, and energy-efficient in every room.
Zoned comfort: Quiet mini-split HVAC lets you set different temperatures in different areas, so you only heat or cool where you need.
Build Quality
Steel framing: Light-gauge steel is strong, non-combustible, and resistant to water, rot, and termites.
Closed-wall System: Wall panels are integrated with tight quality control for cleaner finishes and consistent performance.
Precision assembly: Components arrive ready to fit together on site, helping speed, quality, and consistency.
Kitchen & Dining/Living Area
Spacious island: Plumbing runs along the exterior wall to keep the island open with more room for cooking, seating, and gathering.
Smart Energy & EV
Solar + home battery: Rooftop solar works with a Tesla Powerwall to store energy for later use.
EV-ready garage
Two 40A / 240V circuits are prepped. Just add your preferred chargers and plug in.
Warranty & Support
1-year “fit & finish” coverage on surfaces and finishes.
10-year structural coverage on major components.
Backed by a precise, design-to-build process for quality and service you can trust.
Finishes
Daybreak
Twilight


About Veev :
Learn MoreWe’re redefining exceptional living for a better and more sustainable world. And we’re doing it one luxury home experience at a time. Find out why there’s no place like Veev.


